Home for Sale at 40 Ave I in Monroe, NJ for $1,125,000

40 Ave I | Monroe

$1,125,000 | 5 Beds | 3 Baths (3 Full) | 3,221 Sq. Ft.

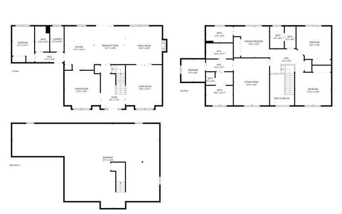
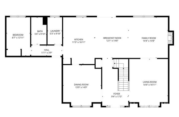
New Construction in Monroe Township! This thoughtfully designed 5 bedroom, 3 bath Custom Colonial is currently under construction, offering a perfect balance of classic style, quality workmanship, and modern comfort. Quick delivery. The inviting two-story foyer leads to a bright, open-concept main level ideal for everyday living and entertaining. The kitchen features a large center island, granite or quartz countertops, and custom cabinetry, opening to the adjoining dining area and gathering room with a state of the art electric fireplace. A formal dining room with tray ceiling adds elegance, while a front flex room provides versatility as a home office, library, or playroom. A convenient first floor bedroom and full bath and laundry room and access to the two-car garage complete the first floor. Upstairs, the spacious primary suite showcases a tray ceiling, two walk-in closets; one which could be used as an office or nursey, and a luxurious ensuite bath with free standing tub, stall shower, and double vanity. Three additional bedrooms, a full bath featuring a separate vanity area completes the upper level. The full unfinished basement offers endless potential for future living space, a recreation area, gym, or media room. Designed with efficiency and longevity in mind, this home features energy saving systems and quality construction throughout. Located on a quiet residential street, this new home provides easy access to Monroe Township's highly rated schools, nearby shopping and dining, and major commuter routes to Princeton, New Brunswick, and the Shore. Highlights include: Brand new construction by a well known respected local builder 5 Bedrooms 3 Baths 2 Car Garage Approx 3221sq ft (to be verified upon completion) Open concept kitchen, dining area, and great room Formal dining room and first floor flex space 9' ceilings on main level Electric fireplace in gathering room Primary suite with tray ceiling and dual walk in closets Spa style bath with free standingtub and separate shower Full unfinished basement Energy-efficient systems and new HVAC Buyer selections available depending on build stage Builder warranty included Taxes to be assessed upon completion. Renderings and photos shown are for illustration only and may depict optional upgrades or similar completed models. Dimensions and features subject to field variation. A wonderful opportunity to own new construction in one of Central Jersey's most desirable communities crafted for today's lifestyle with lasting quality and thoughtful design. For full specifications, floor plans, or builder details, contact the listing agent. CJMLS 2612441R

MLS Listing ID: 
CJMLS 2612441R
Community Information
Association Fee: 
$0
Building Details
Details about the building on a property.
Architectural Style: 
Colonial
Stories: 
2
Year Built: 
0
Age: 
0
Living Area: 
3,221
Basement: 
Full, Interior Entry
Interior: 
1 Bedroom, Entrance Foyer, Kitchen, Living Room, Dining Room, 4 Bedrooms, Bath Main, Bath Other, Other Room(s), Library/Office
Construction
Roof: 
Asphalt
Room Details
Details about the rooms in the building.
Total Rooms: 
12
Total Bedrooms: 
5
Total Bathrooms: 
3
Total Full-Bathrooms: 
3
Total Half-Bathrooms: 
0
Utilities
Information about utilities available on the property.
Heating System: 
Zoned, Forced Air
Cooling System: 
Central Air, Zoned
Water Source: 
Public
Sewer: 
Public Sewer
Lot/Land Details
Details about the lots and land features included on the property.
Lot Size (Dimensions): 
0.00 x 0.00
Public Record
Parcel Number: 
1200123000000014
Annual Tax: 
$5,983.00
Listing Participants
Participants (agents, offices, etc.) in the transaction.
Listing Office Name: 
COLDWELL BANKER REALTY

Request More Information