4 Deer Path | Monroe
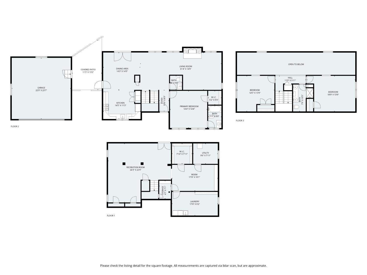
Come take a look at this stunning custom built home situated on a gorgeous 1 1/2 acre private park like lot in desirable Monroe Township. Light, bright and airy best describes the main level with its open floor plan, vaulted ceilings and skylights. The living room boasts a spectacular stone wall wood burning fireplace. Wide hardwood flooring flows from the dining area trough to the living room. Double doors lead from the dining area to the outdoor deck. There are tall Anderson windows allowing for the best views of this beautiful property. Stylish kitchen with a breakfast bar, pantry, granite countertops and wood style ceramic tile flooring. The first floor also has a primary bedroom with ensuite full bath and walkin closet. A half bath completes the main floor. Second level has two large bedrooms both featuring unique arched windows. A generous main bath completes the second floor. The balcony from upstairs gives delightful views to both the main floor and the back yard. Finished walkout basement adds additional square footage. A large room that would be a great recreational area! There is another large room with a walkin closet and built in shelving that has multiple use options. The exterior of the house is a WOW for sure with amazing curb appeal. The home sits comfortably back, offering full privacy from the tall landscaping along the front property line. Both the front and backyard have lovely mature landscaping. The large backyard is bordered by trees for a very country feel. This property gives you that rural Monroe feel with the convenience of city water and sewer. There is a covered breezeway that leads to the 2 car garage. This home also has an additional storage shed, lots of decking for outside enjoyment and a sprinkler system to keep the grounds nice and green. A whole house Generac generator for piece of mind that was installed in 2021. A new roof 2023 and HWH 2023. This custom built beauty is conveniently located near the NJ turnpike, major roads, shopping, dining and a short ride to the NJ shore. See floor plans for approximate room dimensions. Floor plans attached in photos are approximate. CJMLS 2605133R

 
	 
	 
	 
	 
	 
	 
	 
	 
	 
	 
	 
	 
	 
	 
	 
	 
	 
	 
	 
	 
	 
	 
	 
	 
	 
	 
	 
	 
	 
	 
	 
	 
	 
	 
	 
	 
	 
	 
	 
	 
	 
	 
	 
	 
	 
	 
	 
	 
	 
	 
	 
	 
	 
	 
	 
	 
	 
	 
	 
	 
	 
	 
	 
	 
	 
 