Home for Sale at 404 Westgate Drive N in Edison, NJ for $619,711

404 Westgate Drive N | Edison

$619,711 | 2 Beds | 3 Baths (2 Full, 1 Half) | 1,604 Sq. Ft.

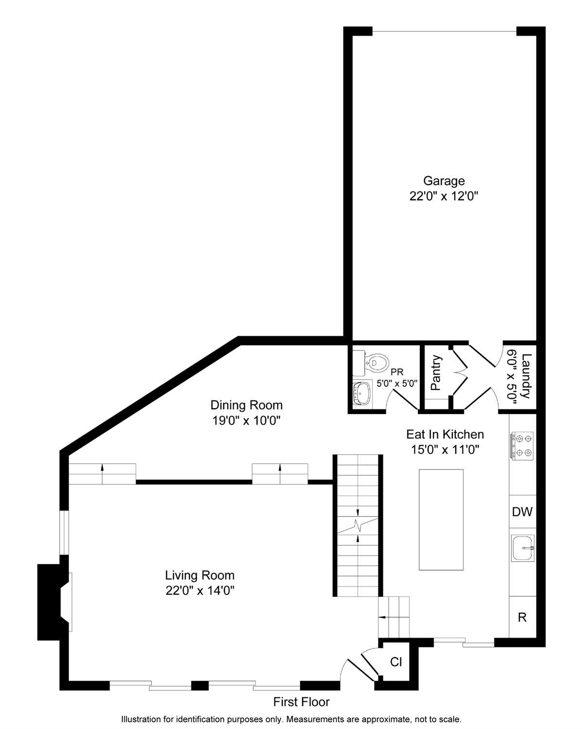
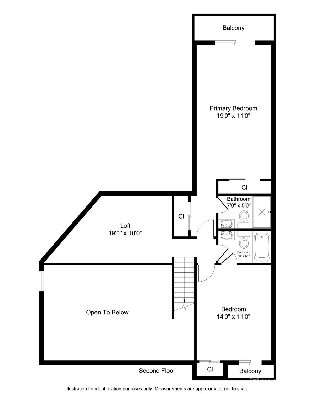
Welcome to 404 Westgate Dr North-facing townhome offering a peaceful wooded view and a sense of privacy in the desirable Westgate community. This spacious 2-bedroom, 2.5-bath residence includes a loft, finished basement, and private deck area, providing a perfect blend of comfort and functionality. Step inside to an open-concept layout filled with natural sunlight, featuring vaulted ceilings in the living room and sliders leading to both the patio and deck for easy indoor-outdoor living. The updated kitchen is the centerpiece of the home highlighted by granite countertops, a center island with seating, farmhouse sink, newer stainless-steel appliances, and custom cabinetry with glass inserts and stone backsplash. The dining area, kitchen, and living room flow seamlessly together ideal for everyday living or hosting gatherings by the wood-burning fireplace. Additional architectural details include shadow boxing accents in the living, dining, and kitchen areas, and a window with plantation shutters overlooking the stairway to the finished basement, adding light and character throughout. The primary suite offers generous closet space and a private bath. The second bedroom features direct access to the main bathroom from both the hallway and the bedroom, offering convenience for guests or family. The loft provides the flexibility for a home office, media room, or reading nook. The finished basement is perfect for recreation, fitness, or additional living space. Other highlights include newer appliances, attached garage, and elegant lighting throughout. Residents enjoy an neighborhood atmosphere with seasonal gatherings and community activities during the summer months. Conveniently located near train stations, major highways, shopping, and restaurants, 404 Westgate Dr offers a stylish and comfortable lifestyle in a serene setting also has lots of amenities Clubhouse, a pool, tennis court and play area. CJMLS 2605661R

MLS Listing ID: 
CJMLS 2605661R
Community Information
Association Fee: 
$0
Building Details
Details about the building on a property.
Stories: 
2
Year Built: 
1983
Age: 
0
Living Area: 
1,604
Basement: 
Partially Finished, Recreation Room, Storage Space, Utility Room
Interior: 
Cathedral Ceiling(s), High Ceilings, Vaulted Ceiling(s), Kitchen Second, Bath Half, Living Room, Dining Room, 2 Bedrooms, Loft, Bath Main, Attic
Construction
Roof: 
Asphalt
Room Details
Details about the rooms in the building.
Total Rooms: 
6
Total Bedrooms: 
2
Total Bathrooms: 
3
Total Full-Bathrooms: 
2
Total Half-Bathrooms: 
1
Utilities
Information about utilities available on the property.
Heating System: 
Forced Air
Cooling System: 
Central Air, Ceiling Fan(s)
Water Source: 
Public
Sewer: 
Public Sewer
Lot/Land Details
Details about the lots and land features included on the property.
Acres: 
0.04
Lot Size (Area): 
0.04
Lot Size (Dimensions): 
0.00 x 0.00
Public Record
Parcel Number: 
050041100000000503C0404
Annual Tax: 
$9,034.00
Listing Participants
Participants (agents, offices, etc.) in the transaction.
Listing Office Name: 
RE/MAX SELECT

Request More Information